Dada la importancia
de la esta Alquería, ya que se trata de una pieza esencial en
el patrimonio de la ciudad de Valencia, y la confusión a que lleva su cambio
de nombre alterando la toponimia. Reproduzco el texto que escribí para el Catálogo
de Bienes Culturales en ámbito rural del Término de Valencia. Añadiendo un nuevo elemento a la protección necesaria, que en su omento no se incluyó: el panel cerámico de Sn. Josep, que da nombre a la alquería y está fechada en 1940.
Vista desde el antiguo huerto
Puerta principal
( fotografias de Miguel del Rey, 1996)
Podríamos
considerarla como el prototipo de la alquería burguesa del primer tercio del S.
XIX. La casa rural se aproxima a la casa de recreo, separándose paulatinamente
del mundo agrario. La arquitectura de la casa interpreta modelos ilustrados,
desde una cultura constructiva muy enraizada en la rica tradición local. En la
actualidad alberga una instalación de eventos lúdicos y a efectos comerciales
se ha denominado erróneamente como “Alquería del Pi", creando cierta confusión
con la así denominada realmente y ubicada inmediatamente frente a ella.
Situación y Contexto de la Alquería: En el Plá de San Bernat, al noroeste
de la ciudad de Valencia; situada al borde del Camí de Godella, próxima al
desvío del Camí de Montcada, encontramos esta interesante alquería cerrada tras
unas tapias de las que emerge el edificio y las masas arbóreas del jardín que
la rodea. El concepto cambiante en el tiempo que se ha dado al término alquería
nos muestra aquí uno de sus modelos más característicos de época moderna. De
ahí la denominación de "nova", o sea, que sustituye a una anterior.
Prefijo este de "nova" muy propio del Dieciocho y de inicios del XIX.
La alquería se levanta en una zona de huerta dedicada casi exclusivamente al cultivo de hortalizas, con una extensión relativamente grande de terreno, separándose de las parcelas circundantes por una tapia, dentro de la cual encontramos: el jardín , la casa y el huerto, además de los anexos económicos y de servicio que estaban adosados a la propia tapia en la parte oeste.
En la actualidad el paisaje circundante ha quedado afectado por la Ronda Norte, muy próxima, y las conexiones complejas que la unen a los caminos históricos de Moncada y Godella. Se
usa como lugar de eventos festivos, con una intervención que ha tenido cierta
incidencia sobre la percepción del bien a proteger, en concreto sobre el huerto, que ha perdido parte de su carácter, manteniendo la cerca, pero perdiendo el trazado. La poco atractiva solución de los aparcamientos han deteriorado en parte el
conjunto de la alquería y el paisaje circundante. Así pues, no es el mejor de los ejemplos a seguir
en estas transformaciones de uso del patrimonio rural.
Sobre su origen: Según su propietaria, que amablemente
mostró hace años la alquería. El edificio se levantó hacia 1830, quizás
sustituyendo a una antigua alquería. Es posible que algunos de los edificios
existentes anexos a la casa y de uso económico, sean pues anteriores, aunque el
actual edificio y el entorno próximo del jardín, se configuran como una
actuación de nueva planta.
Sobre la arquitectura de la alquería: La alquería Nova de Sant Josep por
sus características y por su fecha de construcción (sobre 1830) marcará el
devenir de la arquitectura de la alquería burguesa en el entorno de la ciudad,
trascendiendo incluso y siendo un referente del nuevo paisaje que se crea en el
campo valenciano tras la desamortización y la implantación del sistema liberal.
La alquería a partir de entonces será distinta, perderá en parte cierta
condición “señorial”, para ganar otro prestigio social. Transforma ciertos
elementos de su arquitectura: la torre que definitivamente será un miramar, pero la principal condición
será su ambivalencia; el situarse a medio camino entre la casa agraria y la
vivienda suburbana: el goce de los sentidos, el disfrute de la vida campestre,
son valores de esta nueva sociedad y con ello la alquería deviene en parte en
una casa que sin perder su vinculación con el campo, con lo agrario, con las
casas de trabajadores anexas, incorpora a su arquitectura el jardín, el huerto
y la tapia.
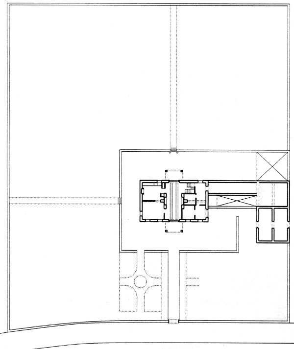
( plano de Miguel del Rey-1996)
Esta alquería es el
ejemplo por antonomasia de esta arquitectura, de las que tendremos otros
ejemplos posteriores en los huertos del sur de l´Horta. De ahí el interés no
solo del edificio, sino de los espacios anexos: de su jardín, de su huerto
posterior y de la tapia. Todo ello es una unidad indisociable.
El edificio principal.- La casa domina el conjunto y se
encuentra liberada de las servidumbres agrarias, siendo los edificios anexos
los que se ocupan de estos menesteres. De planta rectangular y exenta, a la
manera de "pallacina", en edificio se estructura a partir de un eje
compositivo que la atraviesa y se materializa por un gran espacio perpendicular
que une fachada anterior y posterior y sobre el que se levanta una
torre-miramar que penetra el edificio y sobresale dos plantas sobre él, casi
podríamos decir a la manera iluminista, muy propia de la idea de los dibujos
que iluminaban la sala central de planta principal y que puede hayan
desaparecido en la remodelación realizada.
Consta de dos crujías
en los cuerpos laterales y de tres en el central, construidas con líneas de
carga definidas por muros y líneas de carga. La viguetería es de una calidad
particular con acabado romboidal. Se compone en fachada con huecos verticales
con guardaventanas en todos los niveles, mientras que en la planta superior
las ventanas son semilunetos. La cubierta a cuatro aguas da un carácter de
edificio exento y proporciona gran rotundidad a la arquitectura.
Sobre el jardín: El jardín, muy al gusto de la época,
se basa en un esquema de cuarteles con dos ámbitos muy diferenciados, uno
antestante y otro posterior a la casa: un huerto, cerrados todos ellos por una contundente
tapia El jardín hoy más naturalista, debió contener un catálogo de plantas más
variado en su tiempo; se establece con un eje centrado que desde la puerta de la
cerca nos lleva hasta la casa y tras atravesarla se prolonga hasta el final del
huerto después de atravesar una terraza posterior y salvar unos peldaños que
separan dichos ámbitos.

Paso del jardín al huerto, al fondo la gruta. Miguel del Rey de 1996
Huerto que aún conserva el carácter de
"Ort tancat".
Al fondo del eje una gruta nos ofrece un final de recorrido. La nueva
configuración del jardín conserva las alineaciones de naranjos y libera los
parterres, que se convierten en praderas, liberándose así de parte de la carga
agraria.
Gruta al fonde del eje central del huerto. Miguel del Rey de 1996
Vista desde la gruta hacia la casa a través del huerto.Mdel Rey, 1996
Elementos con protección integral:
A1.-ALQUERIA NOVA DE
SANT JOSEP: EDIFICIOS Y HUERTO-JARDÍN /
A2.-ALQUERIA DEL PI
(Ver ficha EPA_SNU_17.05) /
IP.-CAMÍ VELL DE
GODELLA (Ver ficha IP_01) /
AH.-ACEQUIA DE
MESTALLA (Ver ficha AH_05)
B.- ÁREA DE
PROTECCIÓN Ámbito definido por parcelas coherentes y enteras, con el interés de
vincular este ámbito visualmente al camino de Godella de manera que permita la
visualización y el disfrute del conjunto de bienes que se encuentran en este
entorno. Área Rural de uso agrario,
C.- Se define un ÁREA
DE RESTAURACIÓN PAISAJÍSTICA, en torno a la alquería donde se encuentra el aparcamiento de vehículos para el uso de eventos.
ELEMENTOS A
CONSERVAR.- A1.- CASA PRINCIPAL. Protección Integral de volumetría, fachadas,
estructura vertical, cubierta y aleros. De la torre, su acabado aterrazado y
escalera de acceso. Conservar la sintaxis entre el cuerpo principal y los
cuerpos económicos, incluso el patio lateral. Conservar condiciones de forma de
los elementos de fachada y la composición de la misma, materiales, textura,
impostación, color y acabados de las fábricas. Sistema constructivo horizontal,
con especial atención a la viguetería romboidal y de cubierta, incluyendo las
tejas. Forma de las bocaventanas y carpintería en la sección de la ventana.
Grisallas y frescos en la sala principal de planta primera.
A2.- CASA DE CASEROS.
Protección Parcial de las casas.
A3.- PORXADA.
Protección Ambiental
J1.- JARDÍN
ANTESTANTE. Protección Ambiental del trazado y de los ejemplares arbóreos
adultos..
J2 HUERTO, TAPIA Y
ESTRUCTURACION INTERNA. Protección Ambiental conservando eje compositivo
original y perímetro. Protección Integral de la Gruta y escalera entre la
terraza posterior y el huerto jardín.
Estado Actual desde el exterior- 2017
Puerta de acceso al jardín antestante desde el Camí de Godella. MdR-2017
A las anteriores protecciones debe incluirse en el PANEL CERÁMICO DE SANT SOSEP. Una pieza de 1940, de buena factura y formada por 12 piezas ligeramente rectangulares, situado sobre el frontispicio de la puerta principal del jardín: un motivo clásico con iconografía un poco particular del esposo de María, con el niño en brazos, sin sus atributos de carpintero, ni del oficio de carpintero, enmarcado en un arco clasicista con el Espíritu Santo sobre él y ángeles rodeándole.
Es una composición en ocres y azules, muy bien compuesta, con tipografia de letras de los años 30, con una amplia cenefa que da un componente vertical al motivo central. La cenefa tiene dos inscripciones, el año, en la parte superior y el nombre del titular, "Sn Josep", en la parte inferior. Firmado por J. Soriano en 1940. y en buen estado dispuesta sobre un hornacina de ladrillo
Bibliografia:
Arquitectura Rural Valenciana, M del Rey. Valencia. 1996-2010
Alqueríes: Paisatge i arquitectura en l'Horta. M del Rey i Altres. Valencia, 2002





