(Cast) La masía se sitúa en la ladera del Tossal de Calces,
una colina arbolada que limita el pequeño valle donde se ubica, próxima al
antiguo camino Hondo. Fue una factoría agraria especializada en la producción
de uva pasa, en activo entre las últimas décadas del s. XVIII y hasta el último
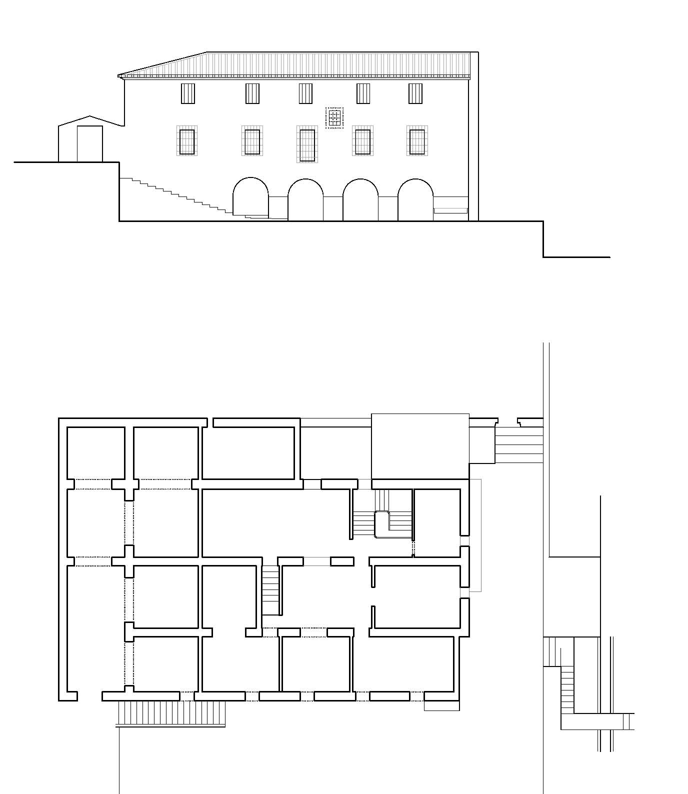
tercio del s. XX. El Mas de San Juan Bautista o Mas de Calces, es una elegante
casa rural que presenta aspectos a reseñar: el primero, relativo a su valor
arquitectónico dentro del patrimonio valenciano, ya que es uno de los mejores
ejemplos de casa con riurau incorporado en su propio volumen, una variante
dialectal comarcal de estas casas con secadero, las denominadas “casas
porticadas”. Solución de cierta rareza, propia de la Marina y también de la
Safor. A su vez, es referencia en las casas de la burguesía terrateniente
alteana, incluyendo en su momento un conjunto de tierras y varios edificios,
configurando una factoría agraria que fue centro de recepción de gran par- te
de la antigua Heretat de Benimussa, propiedad de los Calzas del Castillo, de
donde le viene el nombre a la casa.
A la casa se accede por un camino privado jalonado de
cipreses donde faltan los olivos que acompañaban la entrada en un reciente
pasado. Camino que dejaba al lado terrazas de secado y otros riuraus o
secaderos de uva pasa próximos a la casa y que formaban parte del conjunto.
La arquitectura de la masia es producto de una remodelación
de la casa realizada posiblemente en el primer tercio del siglo XIX sobre un
edificio más antiguo, de dos crujías y cubiertas a un agua que vertía hacia
atrás las aguas e incluía un pequeño espacio filtrante -aún existente- previo a
la puerta de acceso. La remodelación Ochocentista añadío una crujía frente a la
fachada original, compuesta en este caso por un gran riurau inserto en la
arquitectura de la casa y que ocupa todo el frente de fachada; frente a él, un
gran patio cuadrangular previo a la casa que ofrece un espacio de gran calidad
formal, y en su tiempo hizo las veces del “sequer” de la uva pasa.
(Val) La masia es situa en el vessant del Tossal de Calces,
un tossal arbrat que limita la petita vall on s'ubica, propera a l'antic camí
Fondo. Va ser una factoria agrària especialitzada en la producció de pansa i
ametlla, en actiu entre les últimes dècades del s. XVIII i fins a l'últim terç
del s. XX. La Masia de Sant Joan Baptista o Mas de Calces, és una elegant casa
rural que presenta aspectes a ressenyar: el primer, relatiu al seu valor
arquitectònic dins del patrimoni valencià, ja que és un dels millors exemples
de casa amb riurau incorporat en el seu propi volum, una variant dialectal
comarcal d'aquestes cases amb assecador, les anomenades "cases
porticades". Solució de certa raresa, pròpia de la Marina i també de la
Safor. Al seu torn, és referència a les cases de la burgesia terratinent
alteana, incloent en el seu moment un conjunt de terres i diversos edificis,
configurant una factoria agrària que va ser centre de recepció de gran part de
l'antiga Heretat de Benimussa, propietat de la familia que dona el nom a la
masia.
A la casa s'accedeix per un camí privat jalonat de xiprers
on falten les oliveres que acompanyaven l'entrada en un recent passat. Camí que
deixava al costat terrasses d'assecat i altres riuraus o assecadors de pansa
propers a la casa i que formaven part del conjunt.
L'arquitectura de la masia és producte d'una remodelació de
la casa realitzada possiblement en el primer terç del segle XIX sobre un
edifici més antic, de dues crugies i cobertes a una aigua que abocava cap
enrere les aigües i incloïa un petit espai filtrant -encara existent- previ a
la porta d'accés. La remodelació Vuitcentista afegí una crugia davant de la
façana original, composta en aquest cas per un gran riurau inserit en
l'arquitectura de la casa i que ocupa tot el front de façana; enfront d'ell , un
gran pati quadrangular previ a la casa que ofereix un espai de gran qualitat
formal , i en el seu temps va fer les vegades del "sequer" de la
pansa.
Nota: Edificio reseñado en el libro "Arquitectura Rural Valenciana" Valencia 1998 / 2010, del que fue portada en su primera edición. En él trascurre parte de la acción de la novela "Bartolomé. Entre la Ilustración y la Revolución" Valencia 2014






